1606 Fm 359Brookshire, TX 77423
Due to the health concerns created by Coronavirus we are offering personal 1-1 online video walkthough tours where possible.




Mortgage Calculator
Monthly Payment (Est.)
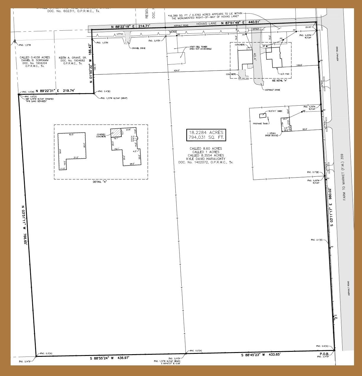
$40,834Prime 18+acre unrestricted lot on FM 359 S, just 1 mile south of I-10 in Brookshire, with full city utilities & excellent road frontage. Positioned near major industrial hubs including Empire West, Woods Crossing and distribution centers for Costco, Amazon, Rooms To Go & Ross, as well as the upcoming Tesla Megapack facility. This location benefits from heavy daily traffic of 59,500 vehicles at FM 359/I-10 and 60,000 on I-10 offering outstanding visibility. Area is experiencing strong population growth w/Brookshire’s population increasing 18% since 2020 & Fulshear growing over 230%. New residential communities like Jordan Ranch, Bluestem, Pecan Ridge, Cross Creek West and the new Lamar CISD campus, located just minutes away, are attracting families to the region. Supported by local businesses and infrastructure, this site is ideal for industrial, commercial, Multi Family or mixed-use in one of Houston’s fastest-growing corridors and in Tax Saving Opportunity Zone
| 2 months ago | Listing updated with changes from the MLS® | |
| 5 months ago | Listing first seen on site |
IDX information is provided exclusively for consumers’ personal, non-commercial use. It may not be used for any purpose other than to identify prospective properties consumers may be interested in purchasing. This data is deemed reliable but is not guaranteed accurate by the MLS.
Data provided by HAR.com © 2026. All information provided should be independently verified.
Did you know? You can invite friends and family to your search. They can join your search, rate and discuss listings with you.